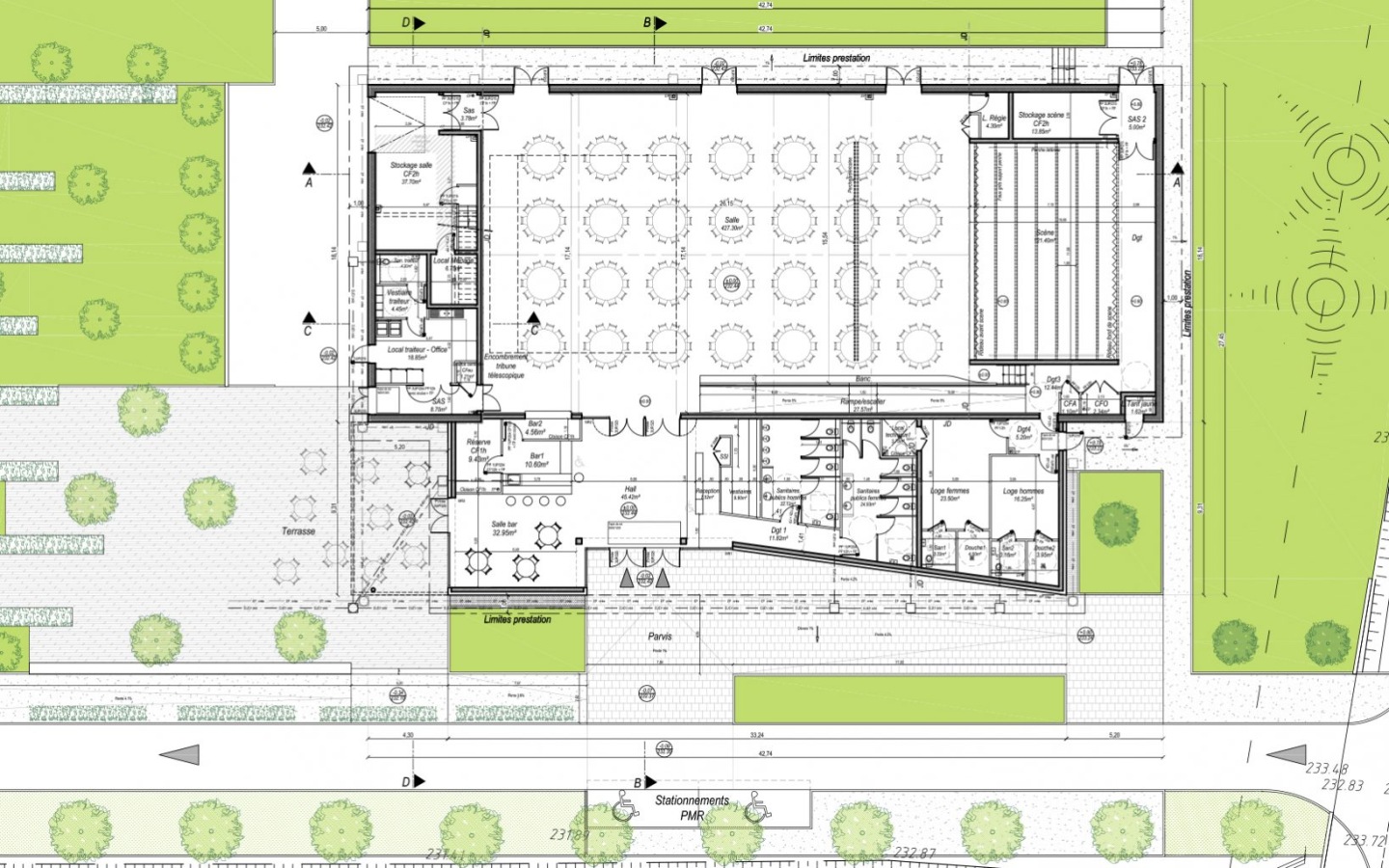
Centre culturel
Avignonet-Lauragais (31)
INFOS
Maître d'ouvrage
Ville d'Avignonet Lauragais
Responsable MO
M. le Maire
Programme
Construction neuve
Procédure
Concours
Surface
1.528 m² SP
Coût des travaux
1.613.000 €HT
Calendrier
Esq. mai 2011 ; APD juillet 2012 (projet abandonné par la MOA)
Mission
Mission de base + EXE + OPC
ÉQUIPE DE MAÎTRISE D'ŒUVRE
Mandataire
Économiste
OPC
architecture MALACAN MARTRES
Économiste
OPC
BET Structure
BET Fluides
BET HQE
EDEIS
BET Fluides
BET HQE
Perspectiviste
Poup'Art